Inicio > Proyectos > Juayua

Juayua

Juayua

Juay?a
Juay?a
Juay?a
Juay?a
Juay?a
Juay?a
Juay?a
Juay?a

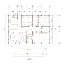
Área de construcción 106.50m2:

Paredes prefabricadas repelladas y pintadas ambas caras

Columnas de madera rolliza para terraza con moldura de concreto

Techo estructura metálica, vista con fibrolit y cubierta de lámina con recubrimiento de zinc color gris

Piso cerámico con zócalo para interior

Piso de barro con zócalo para terraza

Ventanas de aluminio café y vidrio bronce tipo francesas sin cuadrícula

Zarandas para ventanas 

2 puertas de madera sólida

6 puertas tipo americanas simulando madera para interiores

Barras enchapadas en cocina

Lavatrastos de una poceta y escurridor sobre barra de cocina

Servicios sanitarios completos enchapados en duchas

Instalaciones hidráulicas a nivel de mecha

Instalaciones eléctricas a nivel de mecha (Incluye: 2 toma a 220v )

Otros proyectos

Finca Lutecia I
Finca Lutecia I
Casas con acabados
 Cangrejera Bungalow
Cangrejera Bungalow
Casas con acabados
Apartamento Prefabricado
Apartamento Prefabricado
Casas con acabados
Ayuda Damnificados
Ayuda Damnificados
Casas Básicas
© Construcciones Prefabricadas.
Construimos casas, ranchos, piscinas, tapiales y más.
Teléfono: (503) 2228-0022
Diseño por Oswosmedia.com