Inicio > Proyectos > Cuyultitán

Cuyultitán

Cuyultitán

Cuyultitan
Cuyultitán
Cuyultitan
Cuyultitan
Cuyultitan
Cuyultitan

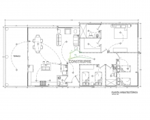
Área de construcción 148.00m2:

Paredes prefabricadas repelladas y pintadas ambas caras

Columnas de madera rolliza para terraza 

Techo estructura metálica, vista con fibrolit y cubierta de lámina con recubrimiento de zinc color gris

Piso cerámico con zócalo

Ventanas de aluminio café y vidrio bronce tipo panorámicas

Puerta de madera sólida para entrada principal

Puertas tipo americanas simulando madera para interiores

Puerta doble con aluminio café y vidrio bronce para sala

Barra enchapada en cocina

Lavatrastos de una poceta

Servicios sanitarios completos enchapados en duchas

½ servicio sanitario para visitas

Instalaciones hidráulicas a nivel de mecha

Instalaciones eléctricas a nivel de mecha (Incluye: 7 toma a 220v para A/C)

Otros proyectos

El Paisnal
El Paisnal
Casas Básicas
Aulas FUSAL
Aulas FUSAL
Casas Básicas
Tapial Comalapa
Tapial Comalapa
Tapiales
Lomas de San Blas
Lomas de San Blas
Casas con acabados
© Construcciones Prefabricadas.
Construimos casas, ranchos, piscinas, tapiales y más.
Teléfono: (503) 2228-0022
Diseño por Oswosmedia.com