Inicio > Proyectos > Barra de Santiago

Barra de Santiago

Barra de Santiago

Barra de Santiago 143.00m2
Barra de Santiago
Barra de Santiago 143.00m2
Barra de Santiago 143.00m2
Barra de Santiago 143.00m2
Barra de Santiago 143.00m2

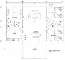
Área de construcción 143.00 m2

Muro de bloque de 0.40 m para elevacion de casa .

Paredes prefabricadas repelladas y pintadas ambas caras

Columnas prefabricadas repelladas y pintadas con moldura de piedrin (Pergola y corredor)

Techo estructura de polin C y cubierta de duralita roja

Cielo falso tipo galaxy en domitorios, sanitarios, cocina y alacena

Pergola de madera de pino curado

Ventana metálica tipo chalet en cocina

Puertas de madera solida en exteriores

Puertas simulando madera tipo americanas en interiores

Servicios sanitarios completos enchapados en ducha

Barra desayunadora enchapada

Lavatrastos de una poceta sobre barra enchapada con azulejo

Instalaciones electricas incluyendo acometida electrica

Instalaciones hidraulicas a nivel de mecha

Transporte de materiales

Otros :

Fosa séptica de 4.50 m3 con pozo de absorción

Pila prefabricada de un lavadero

Otros proyectos

Cojutepeque II
Cojutepeque II
Casas Básicas
Atami II
Atami II
Casas con acabados
Juayua
Juayua
Casas con acabados
Sta.Elena, Usulután
Sta.Elena, Usulután
Casas con acabados
© Construcciones Prefabricadas.
Construimos casas, ranchos, piscinas, tapiales y más.
Teléfono: (503) 2228-0022
Diseño por Oswosmedia.com