Inicio > Proyectos > San Ignacio Compostela

San Ignacio Compostela

San Ignacio Compostela

San Ignacio Compostela
San Ignacio Compostela
San Ignacio Compostela
San Ignacio Compostela

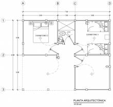
Área de construcción 45.00m2:

Paredes prefabricadas simulando ladrillo visto a una cara, resanadas y pintadas ambas

Enchape en paredes

Columnas prefabricadas resanadas y pintadas para corredor

Techo estructura metálica polin C y con lámina con recubrimiento de zinc

Piso ladrillo de cemento color rojo

Puetas metálicas troqueladas

Ventanas de aluminio gris y vidrio nevado tipo celosía

Ventana aluminio café y vidrio bronce 

Servicio sanitario económico

Instalaciones eléctricas e hidráulicas a nivel de mecha

Otros proyectos

 Cangrejera Bungalow
Cangrejera Bungalow
Casas con acabados
San José El Naranjo
San José El Naranjo
Casas con acabados
Apaneca
Apaneca
Casas Básicas
El Zapote
El Zapote
Casas Básicas
Ilopango
Ilopango
Casas Básicas
© Construcciones Prefabricadas.
Construimos casas, ranchos, piscinas, tapiales y más.
Teléfono: (503) 2228-0022
Diseño por Oswosmedia.com